UPDATE: OUTRAGEOUS ATTACK ON FREEDOM OF SPEECH BY COUNCIL
Gosford City Council removes private signs on private land. The signs were modest and constrained and simply communicated key issues as to why Council should not approve the development application. Council claims any sign on private land is not exempt development and therefore requires a formal “Development application”!
————————-
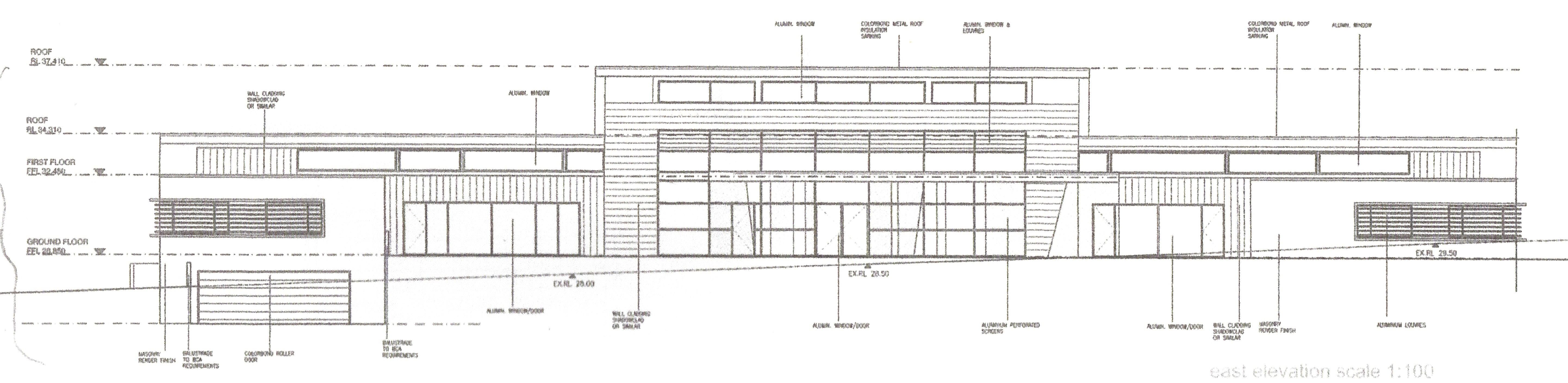
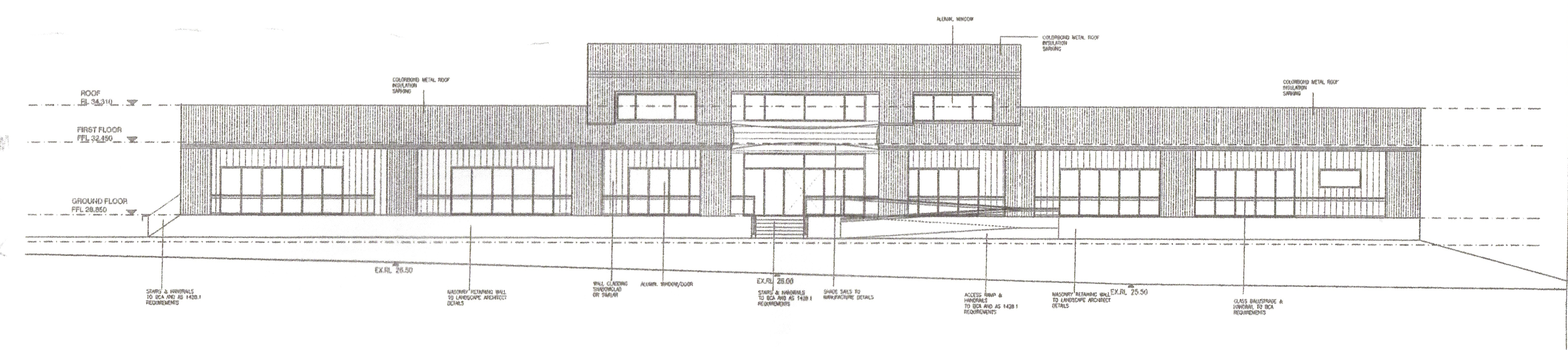
Controversial plans for a massive 120 place child care centre, at the intersection of the Central Coast Highway and Reads Road Wamberal has created a lot of concern due to:
- the industrial size and scale of the development
- the impact of noise pollution – potential for industrial noise levels in a residential area)
- traffic congestion at the junction of Reads Rd and the Central Coast Hwy
- safety of pedestrians.
If approved this development would set a precedent for any rural residential area with 7(c2) zoning to develop the area on an industrial scale.The size and nature of the development conflicts with the 7(c2) conservation and scenic protection zonings and will adversely affect the aesthetic and scenic value of the land and it’s settings.
There is still time to send a submission on this application to Gosford City Council or make a comment online at Planning Alerts.
SUBMISSIONS CLOSE 15 NOVEMBER 2013
Related articles
- Ball of sexy snakes found in backyard (dailytelegraph.com.au)
- Springfield quarry plans to be abandoned (abc.net.au)
- Gosford and Wyong Council water price hike knock back (blogs.abc.net.au)
- Fire closes Pacific Highway in NSW (bigpondnews.com)
Categories: Planning laws







No.
Sent from my iPad
>
Thank you for alerting us to this, we will definitely be opposing it! Absolutely disgusting when you read the research on how large centres such as these leave such a long term, negative impact on children’ emotional and social development. There isn’t one centre in the Wamberal and Terrigal area that is full (you can check this on http://www.mychild.gov.au and search by postcode). Hopefully the Council doesn’t contribute to the oversupply and the shutting down of the more child centred (rather than profit driven) small centres which is my guess the opening of this would!
thanks for all your work and commitment .